Villa singola su unico piano con taverna
Villa in vendita • Vanzaghello - via dei Mulini, 9
Villa singola di recente costruzione, su un solo piano, con taverna e giardino.
La posizione è ottimale, in una via tranquilla e popolata da ville, ad angolo con una via privata così da avere due ingressi carrai.
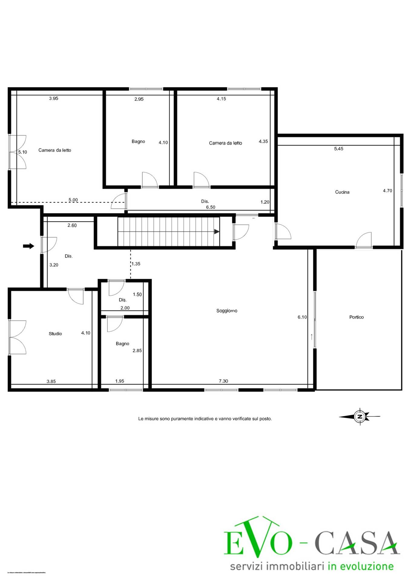
La villa è stata costruita nel 1995 su misura per la famiglia che la abita. L'abitazione è caratterizzata dalle ampie metrature. Oltre 200 mq su un solo piano che comprendono il soggiorno, con accesso al porticato, la cucina di circa 25 mq, le tre camere da letto e i due bagni.
La pavimentazione è in granito per la zona giorno e in parquet per le camere. I serramenti sono stati sostituiti nel 2023 installandoli in legno a triplo vetro con persiane in alluminio. Nello stesso anno è stata ridipinta anche la facciata.
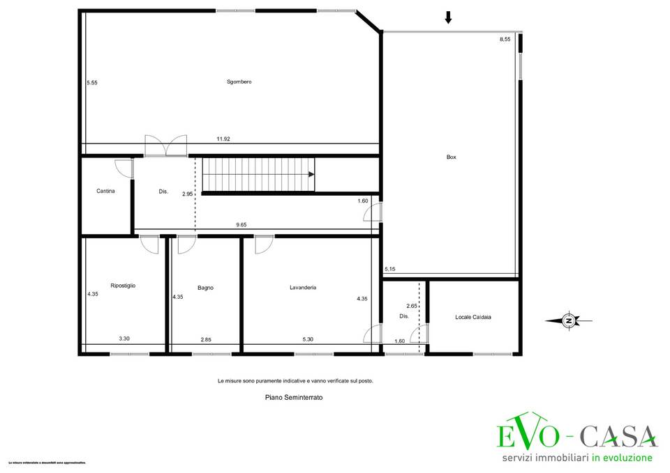
Il piano interrato, della stessa metratura del piano rialzato, è composto da una grande taverna, luminosa grazie alle finestre dirette, e grande circa metà della superficie, bagno, lavanderia, ripostigli e un grande box auto di 50 mq.
Il giardino si sviluppa per la maggior parte sul retro, dove i proprietari hanno posato una piscina esterna ed è dotato di impianto di irrigazione automatico a 4 vie.
Una particolare menzione la merita il porticato a cui si accede dal soggiorno e dalla cucina. Una bella vista sul giardino e dimensioni tali da ospitare un tavolo per 8 persone e anche un dondolo.
La casa è in classe energetica E e con un intervento poco costoso e poco invasivo può raggiungere facilmente la classe C.
In conclusione una bella villa con ottime finiture che è stata pensata perchè sia vivibile e comoda per tutta la famiglia.
Caratteristiche principali
Tipo Riscaldam.
Caldaia a Condensazione
Infissi
Legno Triplo Vetro
Persiana
Persiana Metallo
Accesso interno disabili
Non accessibile
Accessori: Antifurto, Cancello Elettrico, Lavanderia, Pannelli Solari, Porta Blindata, Ripostiglio, Tripli Vetri, Zanzariere
Mappa
via dei Mulini 9, Vanzaghello (MI)
Video